Gas-kvas.com


технический рисунок и эскиз табуретки для срисовки

Технический рисунок и эскиз табуретки представляют собой компактное и детальное изображение мебельного изделия. Они позволяют увидеть конструкцию и пропорции табуретки, а также оценить функциональность и эргономичность данного предмета. Технический рисунок включает в себя размеры, места соединения, основные элементы и материалы, что обеспечивает точность и качество проектирования и изготовления табуретки. Эскиз, в свою очередь, является наброском или предварительным чертежом, который помогает визуализировать концепцию и стиль табуретки, а также дает возможность внести коррективы и улучшения до создания окончательной версии изделия. Вместе технический рисунок и эскиз позволяют полноценно представить и оценить дизайн и характеристики табуретки перед ее фактическим изготовлением.



Сборочный чертеж табурета
Сборочный чертеж табурета

Раскраска табурет
Раскраска табурет

Чертеж детской табуретки
Чертеж детской табуретки

Чертеж стандартной табуретки
Чертеж стандартной табуретки

Сборочный чертеж стула
Сборочный чертеж стула

Табурет Nika ТС чертеж
Табурет Nika ТС чертеж

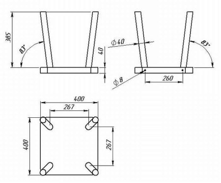
Чертёж проножки табурета
Чертёж проножки табурета

Стандартная высота табуретки
Стандартная высота табуретки

Сборочный чертеж табуретки 7 класс
Сборочный чертеж табуретки 7 класс

Эскизы деревянных стульев
Эскизы деревянных стульев

Чертеж царги и проножки табурета.
Чертеж царги и проножки табурета.

Сборочный чертеж мебельного изделия
Сборочный чертеж мебельного изделия

Эскиз табуретки
Эскиз табуретки

Табурет-стремянка СД-207 чертеж
Табурет-стремянка СД-207 чертеж

Табурет из профильной трубы чертеж
Табурет из профильной трубы чертеж

Эскиз табуретки
Эскиз табуретки

Части табуретки
Части табуретки

Чертёж табуретки на Шиповом соединении
Чертёж табуретки на Шиповом соединении

Сборочный чертеж табуретки
Сборочный чертеж табуретки

Чертежи детских столов
Чертежи детских столов

Построение табуретки
Построение табуретки

Тб1 - табурет медицинский
Тб1 - табурет медицинский

Чертёж табуретки на Шиповом соединении
Чертёж табуретки на Шиповом соединении

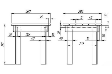
Чертёж табуретки с размерами из дерева
Чертёж табуретки с размерами из дерева

Банкетка Амели 8 ЛДСП, венге
Банкетка Амели 8 ЛДСП, венге

Схема для изготовления стула
Схема для изготовления стула

Чертеж по технологии табурет 1:1
Чертеж по технологии табурет 1:1

Эскиз табуретки
Эскиз табуретки

Сборочный чертеж табурета с размерами
Сборочный чертеж табурета с размерами

Чертёж табуретки с размерами из дерева
Чертёж табуретки с размерами из дерева

Чертёж проножки табурета
Чертёж проножки табурета

Схема сборки табурета из ДСП
Схема сборки табурета из ДСП

Размер табуретки стандарт
Размер табуретки стандарт

Чертеж стандартной табуретки
Чертеж стандартной табуретки

Как сделать табуретку чертеж
Как сделать табуретку чертеж

Чертёж табуретки с размерами
Чертёж табуретки с размерами

Табурет Nika ТС чертеж
Табурет Nika ТС чертеж

Табуретка из ДСП чертежи
Табуретка из ДСП чертежи

Сборочный чертеж табуретки
Сборочный чертеж табуретки

Чертёж проножки табурета
Чертёж проножки табурета

Сборка табуретки
Сборка табуретки

Чертеж детской табуретки
Чертеж детской табуретки

Табурет скамеечка чертеж
Табурет скамеечка чертеж

Табурет Чебышева чертежи
Табурет Чебышева чертежи

Творческий проект табурет
Творческий проект табурет

Конструкции табуреток из дерева
Конструкции табуреток из дерева

Стул сварщика чертеж
Стул сварщика чертеж

Любанский табурет чертеж
Любанский табурет чертеж

Смотрите онлайн или можете скачать на телефон или компьютер в хорошем качестве совешенно бесплатно. Не забывайте оставить комментарий и посмотреть другие фотографии и изображения высокого качества, например эскиз кормушки для птиц рисунок и праздники рисунок эскиз из раздела Рисунки эскизы


Уважаемый посетитель, Вы зашли на сайт как незарегистрированный пользователь. Мы рекомендуем Вам зарегистрироваться либо зайти на сайт под своим именем.